Thiết kế lâu đài Pháp sang trọng uy nghi diễm lệ yêu cầu tay nghề thiết kế cao với guu thẩm mỹ ổn định, khả năng phán đoán chuẩn xác từng góc cạnh hoa văn phù hợp làm tăng vẻ kiều diễm cho biệt thự ở KTS. Cộng dồn chi tiết hoàn mỹ nhỏ sẽ kiến tạo nên vẻ đẹp khó cưỡng "người ngắm người mê".
Chúng tôi xin giới thiệu mẫu thiết kế biệt thự lâu đài đẹp mắt được lên phương án tính toán công phu tỉ mỉ:
Phối cảnh góc biệt thự Pháp 5 tầng
Phối cảnh mặt tiền 10m biệt thự lâu đài Pháp
Phối cảnh hông biệt thự lâu đài Pháp
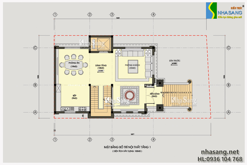
Mặt bằng công năng tầng 1 biệt thự lâu đài Pháp
Hãy liên hệ với chúng tôi: công ty Cổ Phần Kiến Trúc Nhà Sang để được KTS tư vấn miễn phí kiến tạo nên không gian sống lý tưởng nhất hợp phong thủy mang may mắn thần tài vào trong cuộc sống, sinh hoạt gia đình bạn.
Liên hệ thiết kế và thi công:
Email: house.vina@gmail.com
Hotline: 0936 104 768




Đăng nhận xét